Mobile Homes For Sale Columbia and Lexington SC!
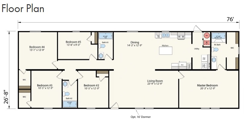
| Home Id | #10 5 bd/2ba 2,027 sq/ft 26x76 | Square Footage | 2027 ft2 |
| Bedrooms | 5 |
| Bathrooms | 3 |
26x76 5 bed 3 bath manufactured home

Ready to see this home in person? Get a Price Quote? Save Thousands on your Purchase? Contact us today to receive all of the information you need and more!
HomeMax partners with the top manufacturers in the industry in product quality, value, flexibility, and service.